InsideOut 01: Lanes
Ongoing research for affordable back yard developments in the Johannesburg Parks suburbs.
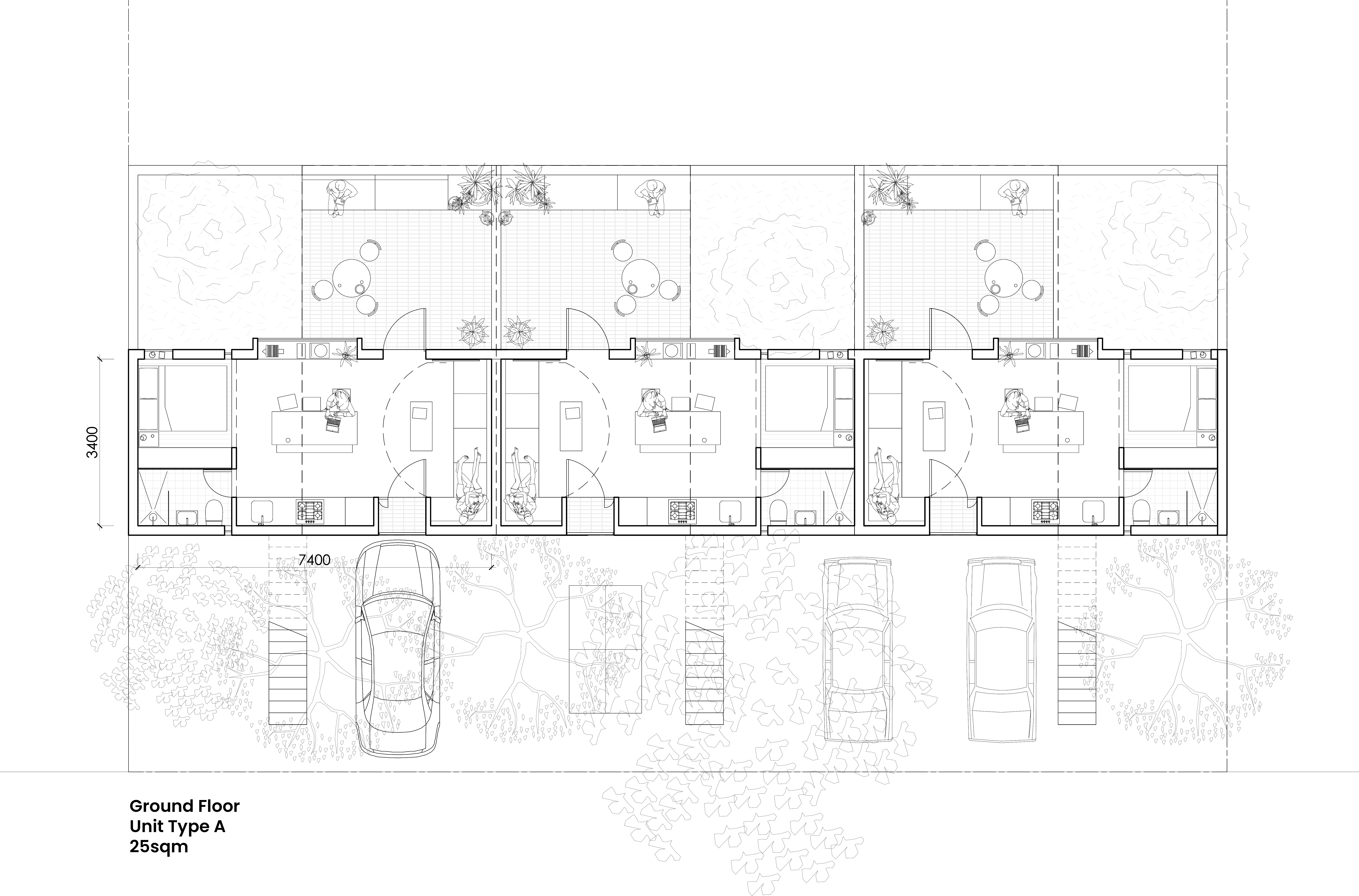
Our design question: how do you design 25sqm to be comfortable for two?
What spatial moves will allow you to entertain in a 25sqm flat?
Register your interest
Help us understand whether there’s real demand for better backyard apartments.
