House of Volumes
Project Type: Private Residence
Status: Completed 2025
Each volume performs a specific programmatic role across living and sleeping while maintaining formal consistency through materials and proportions. Large openings frame selected greenery and horizon views and draw daylight deep into the interior.
Off-shutter concrete, textured plaster and various timbers were chosen for their atmospheric qualities, longevity and beauty, composed to create contrast between weight and warmth. Circulation provides intentional contrast and connection, rendering a ‘village of boxes’ in its legible forms.
Project Type: Private Residence
Status: Completed 2025
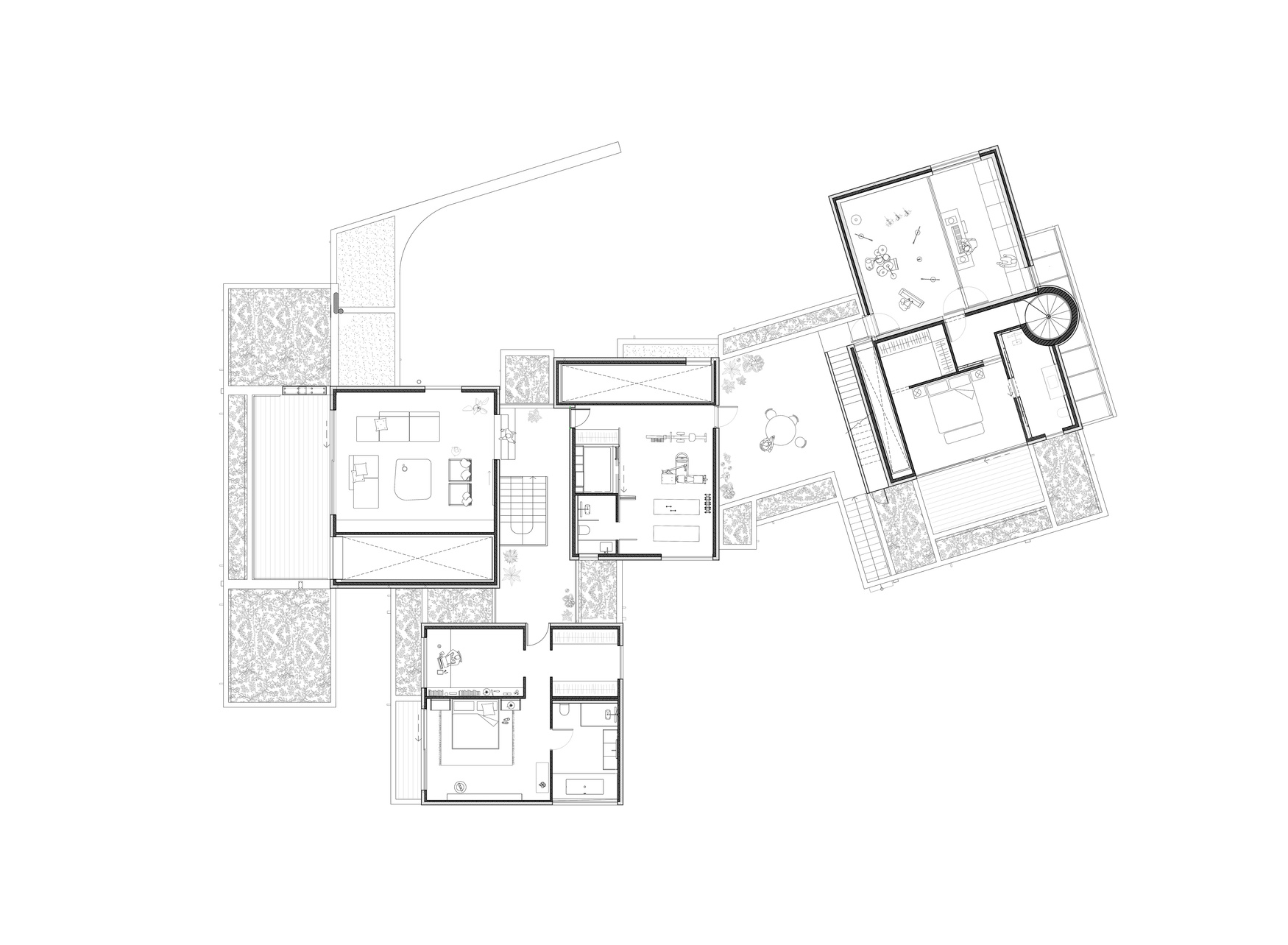
Concept
This project explores the sculptural potential of residential architecture through a series of timber volumes composed over an existing house footprint. The timber massing responds to volume, light, privacy and views interlocked from above and below, elevated on solid walls that anchor the house to its sloped site.Each volume performs a specific programmatic role across living and sleeping while maintaining formal consistency through materials and proportions. Large openings frame selected greenery and horizon views and draw daylight deep into the interior.
Off-shutter concrete, textured plaster and various timbers were chosen for their atmospheric qualities, longevity and beauty, composed to create contrast between weight and warmth. Circulation provides intentional contrast and connection, rendering a ‘village of boxes’ in its legible forms.
Construction
MiMo Architects was involved from concept to completion, providing full architectural services. The house was delivered through close collaboration between the design team, contractors and fabricators. Final-stage documentation captured careful architectural details and spatial moments key to the project’s resolution and craftsmanship.
Next: Construction Photos
See the build take shape with CLT panels, planted roof gardens, and the transformation from render to reality. Light, shadow, and materiality come together as the house settles into its setting.
